08-09-2019, 10:26 AM
“Faster, Faster, until the thrill of speed overcomes the fear of death.” - Hunter S. Thompson
"I couldn't find the sports car of my dreams, so I built it myself." ~Dr. Ferdinand Porsche
"968Forums, a quaint little drinking community with a serious horsepower problem"
"Life's journey is not to arrive at the grave safely in a well-preserved body, but rather to skid in sideways, totally worn-out, shouting, 'Holy sh*t! What a ride!'"- Unknown


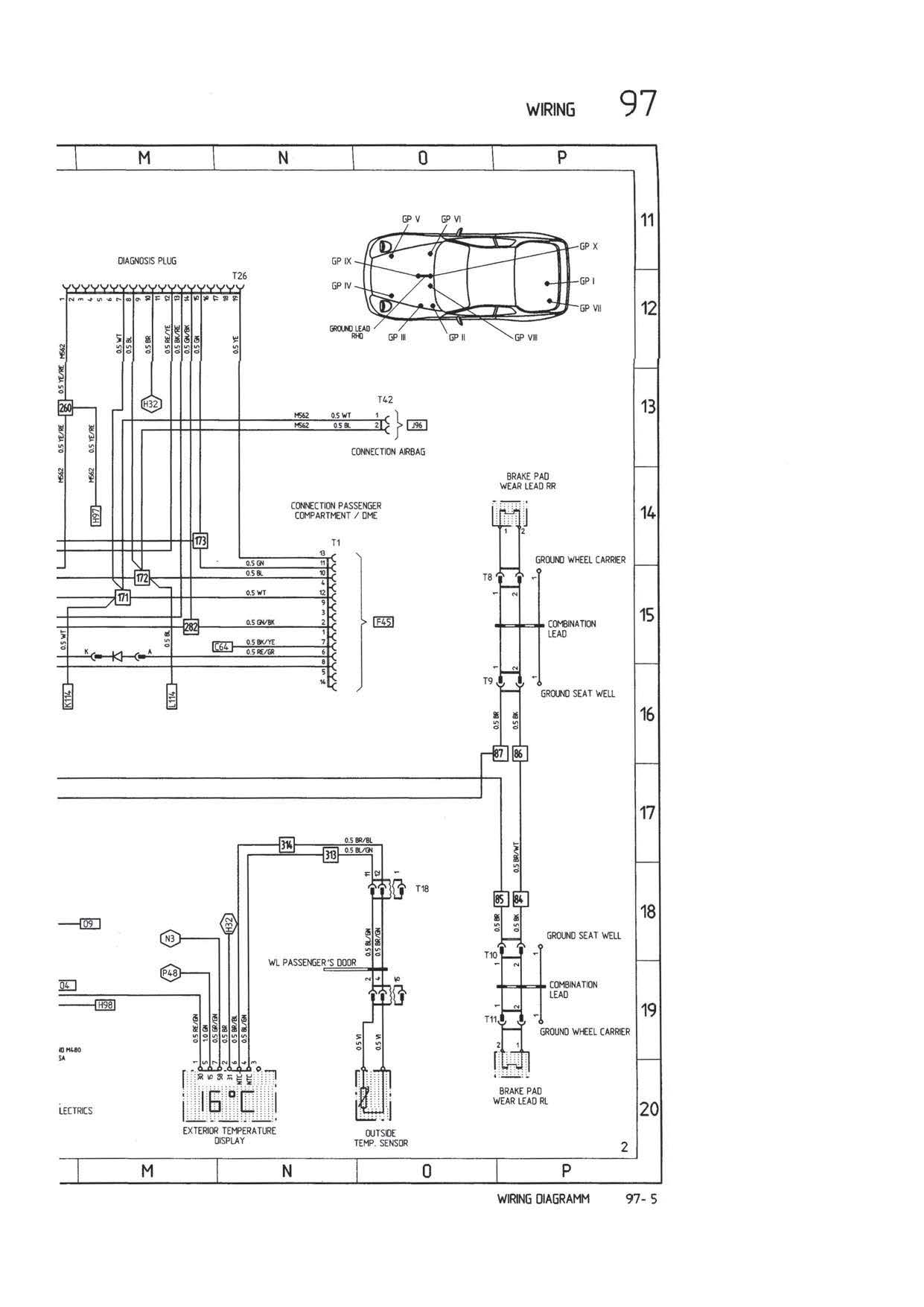
![[Image: G-points.jpg]](http://porsche968.s3.eu-west-2.amazonaws.com/May2018/G-points.jpg)